ПОДАТЬ ЗАЯВКУ
до
15.02.2026
ПОДАТЬ ЗАЯВКУ
ВХОД ДЛЯ ЖЮРИ
О премии
Новости
Фото и видео
Номинанты
Жюри
Премия СМИ
Архив премии
Контакты
АРХИВ ПРЕМИИ
2024
2023
2022
2021
2020
2019
2017-18
2016
2015
НОМИНАЦИЯ
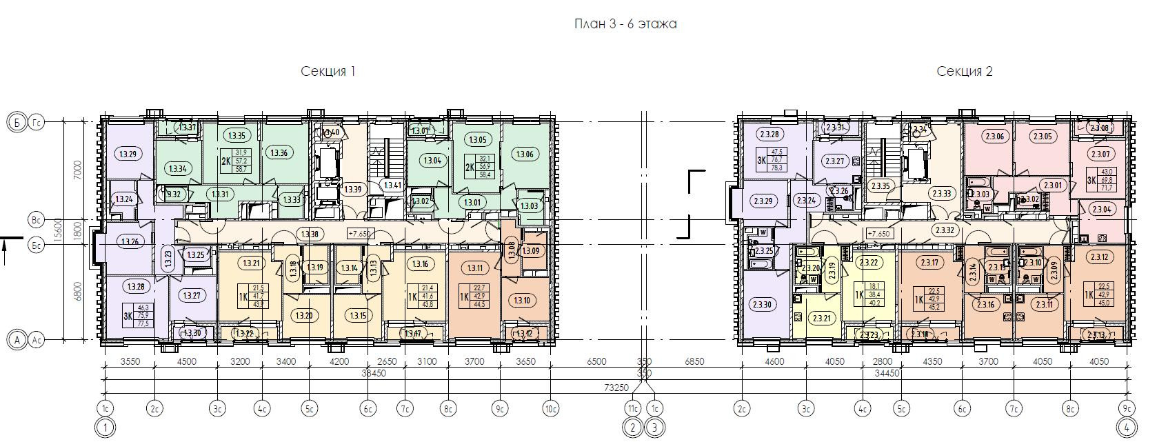
Лучшее архитектурно-градостроительное решение многоквартирного жилого дома по программе реновации_2025
Жилой дом с приспособлением подземной автостоянки под ЗСГО на 2000 мест, с инженерными сетями и благоустройством территории
улица Каспийская, з/у 28/4/15 (ЮАО, Царицыно)
Участники проекта:
Архитектор: ООО «Модус»
Заказчик: Московский фонд реновации жилой застройки
Общая площадь:
11610,31 кв.м