ПОДАТЬ ЗАЯВКУ
до
15.02.2026
ПОДАТЬ ЗАЯВКУ
ВХОД ДЛЯ ЖЮРИ
О премии
Новости
Фото и видео
Номинанты
Жюри
Премия СМИ
Архив премии
Контакты
АРХИВ ПРЕМИИ
2024
2023
2022
2021
2020
2019
2017-18
2016
2015
НОМИНАЦИЯ
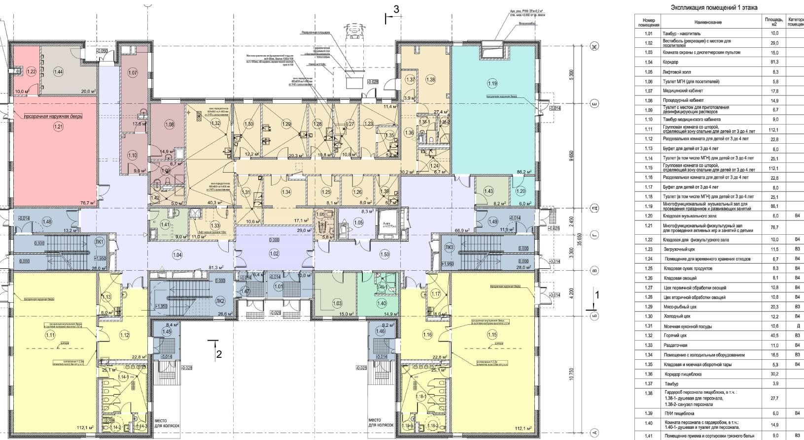
Лучшее архитектурно-градостроительное решение объекта образования_2025
ДОУ на 250 мест, р-н Гольяново, ул. Амурская, влд. 1
ул. Амурская, з/у 1/15 (зона 1.8) (ВАО, Гольяново)
Участники проекта:
Архитектор: АО «Моспроект-4»
Заказчик: АНО «РСИ»
Общая площадь:
4 309,5 кв.м