ПОДАТЬ ЗАЯВКУ
до
15.02.2026
ПОДАТЬ ЗАЯВКУ
ВХОД ДЛЯ ЖЮРИ
О премии
Новости
Фото и видео
Номинанты
Жюри
Премия СМИ
Архив премии
Контакты
АРХИВ ПРЕМИИ
2024
2023
2022
2021
2020
2019
2017-18
2016
2015
НОМИНАЦИЯ
Лучшее архитектурно-градостроительное решение объекта образования_2025
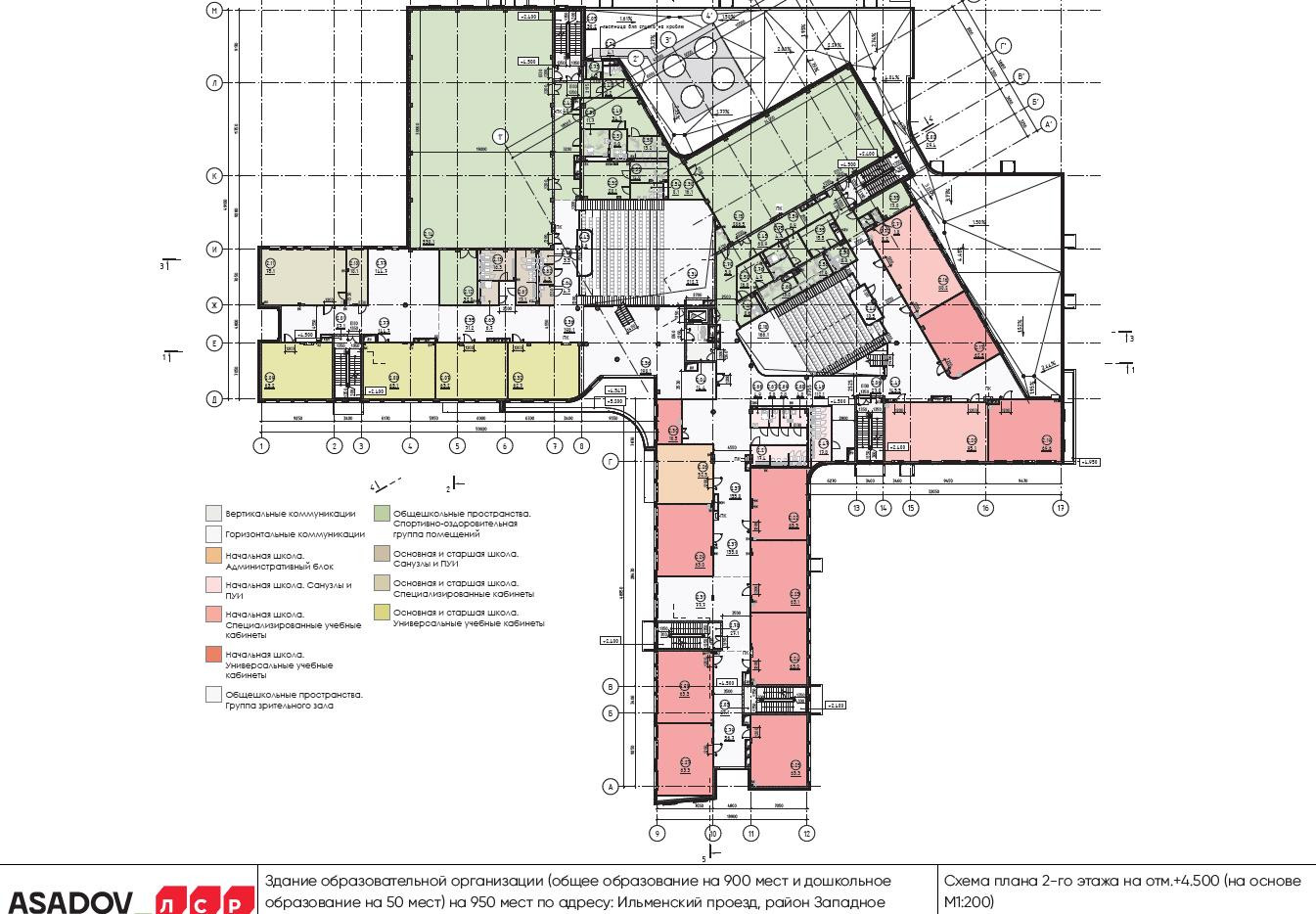
Здание образовательной организации (общее образование) на 900 мест
пр-д Ильменский (САО, Западное Дегунино)
Участники проекта:
Архитектор: ООО «Архитектурное бюро Асадова»
Заказчик: ООО «СЗ «ЛСР.Развитие»
Общая площадь:
16 279,1 кв.м