ПОДАТЬ ЗАЯВКУ
до
15.02.2026
ПОДАТЬ ЗАЯВКУ
ВХОД ДЛЯ ЖЮРИ
О премии
Новости
Фото и видео
Номинанты
Жюри
Премия СМИ
Архив премии
Контакты
АРХИВ ПРЕМИИ
2024
2023
2022
2021
2020
2019
2017-18
2016
2015
НОМИНАЦИЯ
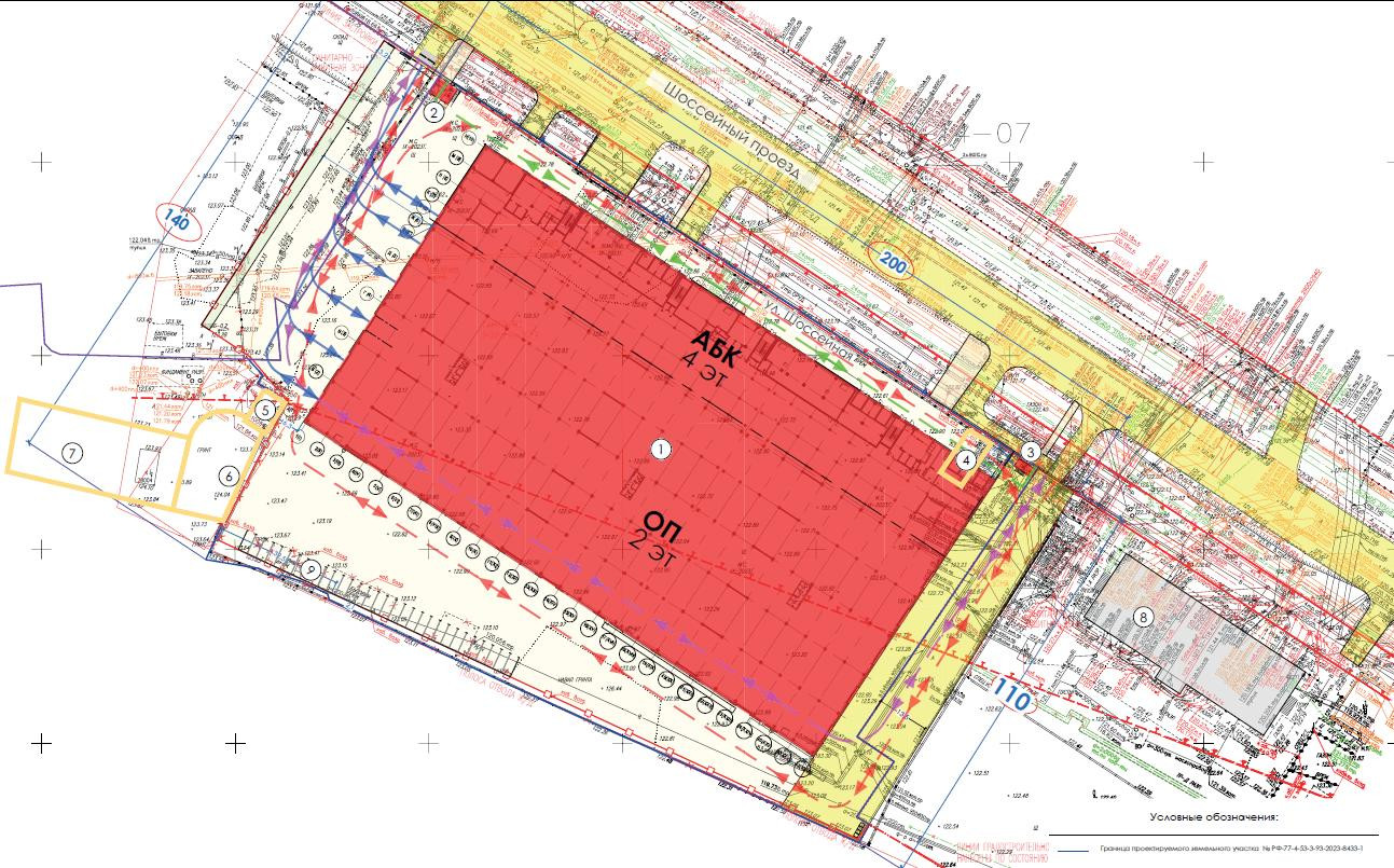
Лучшее архитектурно-градостроительное решение технопарка, склада, объекта инженерной инфраструктуры_2025
Производственное здание с административно-бытовым корпусом
Шоссейный проезд, з/у 12А (ЮВАО, Печатники)
Участники проекта:
Архитектор: ООО «А-Проект.к»
Заказчик: АО «Особая экономическая зона «Технополис Москва»
Общая площадь:
34 170,1 кв.м